5 Hal Yang Harus Diperhatikan Dalam Membangun/Merenovasi Kos Kosan Dengan Desain Kos Ukuran 3 Lantai
1. Perencanaan dan Desain Arsitektur
- Riset Kebutuhan Pasar: Tentukan target pasar, seperti mahasiswa, pekerja, atau keluarga kecil, untuk mengetahui kebutuhan dan preferensi mereka.
- Desain Efisien: Rancang tata letak yang efisien untuk memaksimalkan ruang. Pertimbangkan jumlah kamar, ukuran kamar, dan fasilitas umum seperti dapur, ruang santai, dan area parkir.
- Estetika dan Fungsi: Pastikan desain arsitektur menarik dan fungsional. Fasilitas seperti pencahayaan alami, sirkulasi udara, dan keamanan harus diperhatikan.
2. Persetujuan dan Izin
- Perizinan Bangunan: Pastikan semua izin yang diperlukan dari pemerintah daerah telah diperoleh, termasuk IMB (Izin Mendirikan Bangunan).
- Regulasi Zonasi: Periksa regulasi zonasi untuk memastikan proyek sesuai dengan peraturan setempat, seperti ketinggian bangunan, jarak dari batas tanah, dan penggunaan lahan.
- Persetujuan Lingkungan: Pertimbangkan dampak lingkungan dan pastikan proyek tidak merusak ekosistem setempat.
3. Konstruksi dan Material
- Pemilihan Material: Gunakan material berkualitas yang tahan lama dan sesuai dengan anggaran. Pertimbangkan bahan yang mudah didapatkan dan ramah lingkungan.
- Struktur Bangunan: Pastikan struktur bangunan kuat dan stabil, terutama karena ini adalah bangunan tiga lantai. Konsultasikan dengan insinyur struktur untuk memastikan keamanan.
- Teknologi Konstruksi: Gunakan teknologi konstruksi terbaru untuk efisiensi waktu dan biaya. Pertimbangkan prefabrikasi atau teknologi modular.
4. Fasilitas dan Infrastruktur
- Fasilitas Umum: Sediakan fasilitas umum yang memadai seperti kamar mandi, dapur, ruang cuci, dan tempat parkir. Fasilitas tambahan seperti Wi-Fi, CCTV, dan area hijau juga dapat meningkatkan daya tarik.
- Sistem Kelistrikan dan Air: Pastikan sistem kelistrikan dan air dirancang dengan baik dan aman. Sediakan cadangan listrik seperti genset dan sistem pemadam kebakaran.
- Pengelolaan Sampah: Rancang sistem pengelolaan sampah yang efisien untuk menjaga kebersihan dan kesehatan lingkungan sekitar.
5. Anggaran dan Manajemen Proyek
- Rencana Anggaran: Buat rencana anggaran yang detail dan realistis. Sertakan biaya tak terduga untuk menghindari kekurangan dana di tengah proyek.
- Manajemen Waktu: Buat jadwal proyek yang rinci dan pastikan setiap tahapan selesai tepat waktu. Gunakan manajemen proyek yang baik untuk koordinasi antara tim.
- Kontrol Kualitas: Lakukan pengawasan kualitas secara rutin selama proses konstruksi untuk memastikan hasil akhir sesuai dengan standar yang diinginkan.
Tahapan yang Harus Diperhatikan:
- Perencanaan Awal: Meliputi riset pasar, pembuatan konsep desain, dan estimasi awal anggaran.
- Desain dan Persetujuan: Pengembangan desain detail, pengurusan izin, dan persetujuan dari pihak terkait.
- Persiapan Konstruksi: Pemilihan material, perencanaan logistik, dan persiapan lahan.
- Pelaksanaan Konstruksi: Pembangunan fisik sesuai dengan desain dan spesifikasi, dengan pengawasan ketat.
- Penyelesaian dan Serah Terima: Penyelesaian akhir, inspeksi kualitas, dan serah terima kepada pemilik.
Dengan memperhatikan lima hal di atas dan mengikuti tahapan yang disarankan, proyek pembangunan atau renovasi kos-kosan tiga lantai dapat berjalan lancar dan sukses. CV Jaya Intero selalu siap memberikan layanan terbaik untuk memastikan kepuasan pelanggan.
Perbandingan Desain Kos Kosan Lantai 3 Dengan Tema Klasik Kontemporer Dibanding Bali Natural Juga Dengan Tropis Modern

Sebagai kontraktor bangun rumah dan renovasi rumah berpengalaman dari CV Jaya Intero, berikut penjelasan tentang kelebihan desain kos-kosan tiga lantai dengan perbandingan tema bergaya Klasik Kontemporer, Bali Natural, dan Tropis Modern.
1. Desain Kos-Kosan Bergaya Klasik Kontemporer

Pengertian dan Ciri-Ciri:
- Pengertian: Desain ini menggabungkan elemen klasik dengan sentuhan modern, menciptakan tampilan elegan dan abadi dengan fungsi dan kenyamanan masa kini.
- Ciri-Ciri:
- Penggunaan ornamen klasik seperti pilar, moulding, dan detail ukiran.
- Palet warna netral seperti putih, krem, dan abu-abu dengan aksen warna emas atau perak.
- Material berkualitas tinggi seperti marmer, kayu, dan logam.

Ukuran dan Tata Letak:
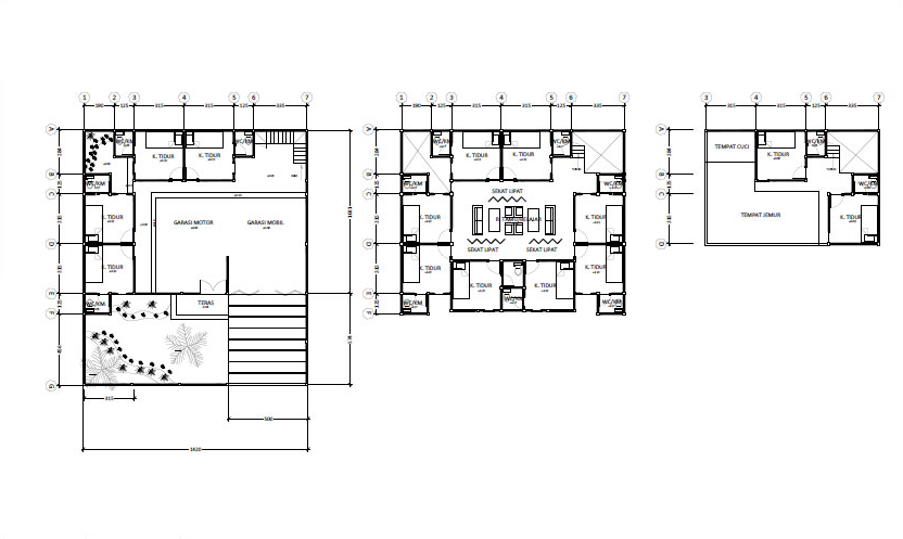
- Kamar Tidur: 12 kamar per lantai (total 36 kamar), ukuran tiap kamar 3m x 4m.
- Kamar Mandi: 12 kamar mandi per lantai, ukuran 1.5m x 2m, setiap kamar tidur dilengkapi kamar mandi dalam.
- Parkiran: Area parkir di lantai dasar, kapasitas 8-10 mobil, dan 20-25 motor.
- Mushola: Ukuran 3m x 4m, terletak di lantai dasar.
- Ventilasi: Ventilasi alami dan buatan yang optimal dengan jendela besar dan AC.
- Warna: Dominasi warna netral dengan aksen klasik.
- Tempat Security: Ukuran 2m x 2m, terletak dekat pintu masuk utama.
2. Desain Kos-Kosan Bergaya Bali Natural

Pengertian dan Ciri-Ciri:
- Pengertian: Menghadirkan nuansa alam Bali yang eksotis dengan penggunaan material alami dan desain yang menyatu dengan lingkungan.
- Ciri-Ciri:
- Penggunaan material alami seperti kayu, batu alam, dan bambu.
- Atap tinggi dengan ventilasi alami yang baik.
- Elemen dekoratif Bali seperti patung, ukiran, dan taman kecil.

Ukuran dan Tata Letak:
- Kamar Tidur: 10 kamar per lantai (total 30 kamar), ukuran tiap kamar 3.5m x 4m.
- Kamar Mandi: 10 kamar mandi per lantai, ukuran 2m x 2m, setiap kamar tidur dilengkapi kamar mandi dalam.
- Parkiran: Area parkir di lantai dasar, kapasitas 8-10 mobil, dan 20-25 motor.
- Mushola: Ukuran 3m x 4m, terletak di lantai dasar.
- Ventilasi: Ventilasi alami dengan jendela besar dan penggunaan material yang mendukung sirkulasi udara.
- Warna: Warna alami seperti coklat, hijau, dan krem.
- Tempat Security: Ukuran 2m x 2m, terletak dekat pintu masuk utama.
3. Desain Kos-Kosan Bergaya Tropis Modern

Pengertian dan Ciri-Ciri:
- Pengertian: Desain yang mengutamakan kesejukan dan kenyamanan dengan konsep modern yang terintegrasi dengan lingkungan tropis.
- Ciri-Ciri:
- Penggunaan material modern seperti beton, kaca, dan baja ringan.
- Atap datar atau miring dengan desain minimalis.
- Elemen dekoratif modern dengan aksen hijau dari tanaman indoor dan outdoor.
Ukuran dan Tata Letak:
- Kamar Tidur: 12 kamar per lantai (total 36 kamar), ukuran tiap kamar 3m x 4m.
- Kamar Mandi: 12 kamar mandi per lantai, ukuran 1.5m x 2m, setiap kamar tidur dilengkapi kamar mandi dalam.
- Parkiran: Area parkir di lantai dasar, kapasitas 8-10 mobil, dan 20-25 motor.
- Mushola: Ukuran 3m x 4m, terletak di lantai dasar.
- Ventilasi: Ventilasi yang optimal dengan penggunaan jendela besar dan sistem ventilasi modern.
- Warna: Warna cerah dan netral dengan aksen hijau dari tanaman.
- Tempat Security: Ukuran 2m x 2m, terletak dekat pintu masuk utama.
CV. Jaya Intero menawarkan berbagai gaya desain untuk kos-kosan 3 lantai, termasuk:
Klasik Kontemporer: Menggabungkan elemen klasik dengan sentuhan modern, menghasilkan tampilan elegan dan abadi.
Bali Natural: Menonjolkan nuansa alami dengan penggunaan material seperti kayu dan batu, serta elemen tradisional Bali.
Tropis Modern: Memanfaatkan pencahayaan alami dan ventilasi yang baik, dengan desain yang sederhana namun fungsional.
Untuk memastikan sirkulasi udara yang optimal, penting untuk:
Menyediakan ventilasi yang memadai di setiap kamar.
Menggunakan jendela yang dapat dibuka untuk memungkinkan aliran udara.
Memastikan adanya ruang terbuka atau taman di sekitar bangunan untuk mendukung aliran udara yang baik.
Fasilitas umum yang dapat meningkatkan kenyamanan penghuni meliputi:
Ruang santai atau ruang bersama untuk interaksi sosial.
Dapur umum yang dilengkapi dengan peralatan memasak.
Area parkir yang memadai untuk kendaraan penghuni.
Sistem keamanan seperti CCTV dan akses kontrol.
Untuk memaksimalkan penggunaan lahan terbatas:
Rancang tata letak ruangan yang efisien dengan memanfaatkan setiap sudut secara optimal.
Pertimbangkan penggunaan furnitur multifungsi untuk menghemat ruang.
Gunakan desain vertikal untuk menambah jumlah kamar tanpa memperluas area dasar bangunan.
Ya, CV. Jaya Intero menawarkan konsultasi gratis untuk membantu Anda merencanakan desain kos-kosan 3 lantai yang sesuai dengan kebutuhan dan preferensi Anda. Tim profesional kami siap memberikan saran dan solusi terbaik untuk proyek Anda.
Dengan pengalaman kami di CV Jaya Intero, kami dapat memastikan bahwa proyek ini akan berjalan lancar, sesuai dengan anggaran, dan memenuhi standar kualitas tinggi. Kami siap membantu Anda dan keluarga mewujudkan kos-kosan impian yang nyaman dan terjangkau.
