
4 Hal Yang Harus Diperhatikan Dalam Membangun/Merenovasi Rumah Dengan Desain Dan Denah Rumah 9 x 12
Sebagai arsitek dari CV Jaya Intero, saya memahami bahwa membangun atau merenovasi rumah adalah proses yang kompleks dan penting. Berikut adalah lima hal utama yang harus diperhatikan dalam membangun atau merenovasi rumah dengan ukuran 9 x 12 meter
1. Penataan Ruang yang Efisien
Penting untuk merencanakan penataan ruang yang efisien untuk memaksimalkan penggunaan area yang tersedia. Hal ini termasuk mempertimbangkan ruang tamu, dapur, kamar tidur, dan area bersama lainnya agar tidak terasa terlalu sesak tetapi tetap nyaman untuk aktivitas sehari-hari. Mungkin mempertimbangkan ruang terbuka atau teras untuk menambah ruang luar yang nyaman.
2. Fungsionalitas dan Aksesibilitas
Desain harus memperhitungkan fungsionalitas untuk semua penghuni rumah, termasuk pensiunan atau keluarga besar. Ini bisa berarti mempertimbangkan aksesibilitas untuk orang tua atau orang dengan mobilitas terbatas, dengan mempertimbangkan tangga yang nyaman, kamar mandi yang dirancang untuk akses mudah, dan area yang dapat dijangkau dengan aman.
3. Pencahayaan dan Ventilasi
Desain yang baik juga mencakup pencahayaan alami yang memadai dan ventilasi yang baik di setiap ruangan. Pengaturan jendela yang tepat dapat memaksimalkan cahaya matahari untuk mengurangi ketergantungan pada pencahayaan buatan dan juga memastikan sirkulasi udara yang baik untuk kesehatan penghuni.
4. Pertimbangan Estetika dan Kebutuhan Pribadi
Meskipun fungsionalitas penting, estetika juga berperan penting dalam menciptakan lingkungan yang menyenangkan dan mengundang. Pertimbangkan preferensi pribadi dari penghuni rumah, apakah itu dalam hal gaya arsitektur, warna, atau material bangunan. Ini akan membantu menciptakan ruang yang benar-benar cocok dan nyaman bagi mereka yang tinggal di dalamnya.
Memperhatikan empat hal ini akan membantu memastikan bahwa proses pembangunan atau renovasi rumah anda berjalan lancar dan hasilnya sesuai dengan harapan.Penataan ruang yang efisien,fungsionalitas dan aksebilitas,pencahayaan dan ventilasi,serta pertimbangan estetika dan kebutuhan pribadi yang baik adalah kunci sukses dalam proyek ini.
Kami di CV Jaya Intero selalu siap membantu Anda melalui setiap langkah proses ini dengan profesionalisme dan dedikasi tinggi untuk memastikan rumah impian Anda terwujud dengan sempurna.
Perbandingan Desain Rumah 9 x 12 Dengan Tema Klasik Dibanding Bali Juga Dengan Industrialis

Sebagai kontraktor berpengalaman dari CV. Jaya Intero, saya dengan senang hati akan menjelaskan kelebihan desain rumah ukuran 9 x 12 meter dengan rencana 2 lantai dalam tiga gaya: Klasik, Bali, dan Industrialis. Berikut adalah pengertian, ciri-ciri, dan detail masing-masing tema serta perkiraan anggaran untuk membangun rumah tersebut.
1. Desain Rumah Bergaya Klasik

Pengertian dan Ciri-Ciri: Gaya klasik menekankan keanggunan, simetri, dan detail ornamen yang rumit. Ciri khasnya meliputi pilar besar, lengkungan, dan penggunaan marmer atau batu alam.
Ukuran dan Tata Letak Ruang:
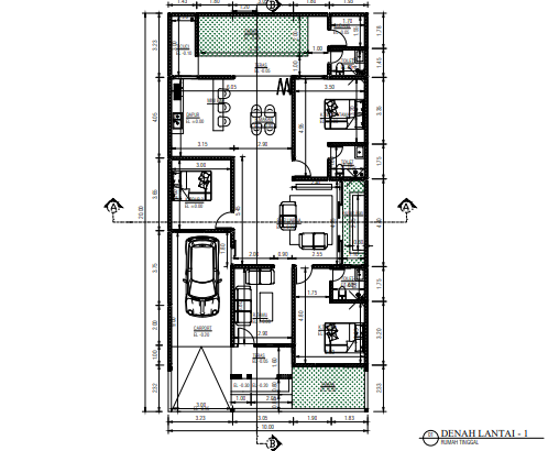
- Lantai 1:
- Ruang Tamu: 4 x 5 meter
- Ruang Makan: 4 x 3 meter
- Dapur: 3 x 3 meter
- Kamar Tidur Tamu: 3 x 4 meter
- Kamar Mandi: 2 x 3 meter
- Kolam Renang: 3 x 6 meter
- Mushola: 2 x 3 meter

- Lantai 2:
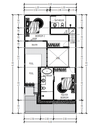
- Kamar Tidur Utama: 4 x 5 meter
- Kamar Mandi Utama: 3 x 3 meter
- Kamar Tidur Anak 1: 3 x 4 meter
- Kamar Tidur Anak 2: 3 x 4 meter
- Ruang Baca: 3 x 3 meter
- Balkon: 2 x 4 meter
Furniture, Warna, dan Ornamen:
- Furniture: Klasik dengan ukiran, sofa besar, meja makan kayu.
- Warna: Emas, putih, krem.
- Ornamen: Lukisan, cermin besar, lampu gantung kristal.
Kisaran Anggaran: Rp 1,5 – 2 miliar.
2. Desain Rumah Bergaya Bali

Pengertian dan Ciri-Ciri: Gaya Bali menekankan harmoni dengan alam, penggunaan material alami, dan ventilasi yang baik. Ciri khasnya adalah bale, atap tinggi, dan ornamen ukiran Bali.
Ukuran dan Tata Letak Ruang:
- Lantai 1:
- Ruang Tamu: 4 x 4 meter
- Ruang Makan: 4 x 3 meter
- Dapur: 3 x 3 meter
- Kamar Tidur Tamu: 3 x 4 meter
- Kamar Mandi: 2 x 2 meter
- Kolam Renang: 3 x 6 meter dengan taman
- Mushola: 2 x 3 meter

- Lantai 2:
- Kamar Tidur Utama: 4 x 5 meter
- Kamar Mandi Utama: 2 x 3 meter
- Kamar Tidur Anak 1: 3 x 3 meter
- Kamar Tidur Anak 2: 3 x 3 meter
- Ruang Baca: 3 x 3 meter
- Bale Bengong: 3 x 3 meter
Furniture, Warna, dan Ornamen:
- Furniture: Kayu jati, anyaman bambu, kursi rotan.
- Warna: Coklat, hijau, krem.
- Ornamen: Patung batu, ukiran kayu, kain tradisional Bali.
Kisaran Anggaran: Rp 1,3 – 1,8 miliar.
3. Desain Rumah Bergaya Industrialis

Pengertian dan Ciri-Ciri: Gaya industrialis menonjolkan elemen mentah dan tampilan unfinished. Ciri khasnya adalah dinding bata ekspos, pipa terbuka, dan material metal.
Ukuran dan Tata Letak Ruang:
- Lantai 1:
- Ruang Tamu: 4 x 5 meter
- Ruang Makan: 4 x 3 meter
- Dapur: 3 x 3 meter
- Kamar Tidur Tamu: 3 x 4 meter
- Kamar Mandi: 2 x 2 meter
- Kolam Renang: 3 x 5 meter
- Mushola: 2 x 3 meter

- Lantai 2:
- Kamar Tidur Utama: 4 x 5 meter
- Kamar Mandi Utama: 3 x 3 meter
- Kamar Tidur Anak 1: 3 x 3 meter
- Kamar Tidur Anak 2: 3 x 3 meter
- Ruang Baca: 3 x 3 meter
- Area Kerja: 3 x 3 meter
Furniture, Warna, dan Ornamen:
- Furniture: Metal, kayu kasar, sofa kulit.
- Warna: Hitam, abu-abu, coklat.
- Ornamen: Lampu gantung metal, poster vintage, rak pipa.
Kisaran Anggaran: Rp 1,2 – 1,7 miliar.
Dengan pilihan gaya yang beragam, Anda bisa memilih sesuai dengan selera dan kebutuhan keluarga. Setiap desain memiliki keunikan tersendiri yang akan membuat rumah Anda nyaman sebagai tempat pensiun, serta cocok untuk berkumpul dengan keluarga besar dan menikmati hobi. Kami di CV. Jaya Intero siap membantu mewujudkan rumah impian Anda dengan profesionalisme dan kualitas terbaik.
