5 Hal Yang Harus Diperhatikan Dalam Membangun/Merenovasi Untuk Detail Desain Kos-Kosan 2 Lantai
Membangun atau merenovasi kos-kosan 2 lantai memerlukan perencanaan yang matang dan perhatian terhadap detail untuk menciptakan hunian yang nyaman, aman, dan menarik bagi calon penyewa. Berikut adalah lima hal yang harus diperhatikan beserta tahapan yang harus dilakukan secara profesional
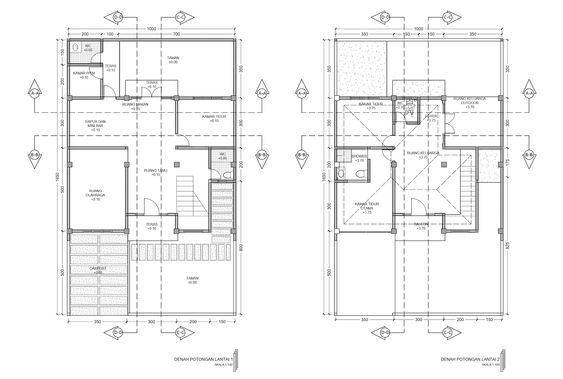
1. Perencanaan Tata Ruang yang Efisien
Deskripsi: Tata ruang yang efisien memastikan setiap area digunakan secara optimal tanpa mengorbankan kenyamanan penghuni.
- Tahapan
- Analisis Kebutuhan: Identifikasi kebutuhan dasar penghuni seperti kamar tidur, kamar mandi, dapur, dan area umum.
- Desain Layout: Buat sketsa layout yang memperhitungkan akses mudah ke setiap ruangan, serta memaksimalkan penggunaan ruang.
- Zona Ruangan: Pisahkan zona publik (ruang tamu, dapur) dan privat (kamar tidur) untuk menjaga privasi penghuni.
2. Kenyamanan dan Kualitas Ventilasi
Deskripsi: Kenyamanan penghuni sangat bergantung pada ventilasi dan pencahayaan yang baik.
- Tahapan
- Penempatan Jendela: Rancang posisi jendela untuk memastikan sirkulasi udara yang baik dan pencahayaan alami.
- Sistem Ventilasi: Integrasikan ventilasi silang di desain untuk mengurangi panas dan kelembapan.
- Pencahayaan: Tambahkan pencahayaan buatan yang cukup di malam hari dan pada area yang kurang mendapat cahaya alami.
3. Pemilihan Material yang Tahan Lama dan Mudah Perawatan
Deskripsi: Material yang tahan lama dan mudah dirawat memastikan kos-kosan tetap dalam kondisi baik dengan biaya perawatan yang minim.
- Tahapan
- Evaluasi Material: Pilih material yang tahan lama seperti keramik untuk lantai, cat dinding anti-lembab, dan atap berkualitas tinggi.
- Konsultasi Supplier: Bekerja sama dengan pemasok terpercaya untuk mendapatkan material dengan kualitas terbaik dan harga yang kompetitif.
- Pengujian Material: Lakukan pengujian atau minta sampel material untuk memastikan kualitas dan ketahanan.
4. Keamanan dan Aksesibilitas
Deskripsi: Keamanan dan aksesibilitas adalah faktor penting yang mempengaruhi kenyamanan dan keselamatan penghuni.
- Tahapan
- Desain Sistem Keamanan: Pasang sistem keamanan seperti CCTV di area strategis dan penerangan yang memadai di koridor dan tangga.
- Akses Mudah: Pastikan setiap kamar mudah diakses, termasuk untuk penyandang disabilitas jika memungkinkan.
- Jalur Evakuasi: Rancang jalur evakuasi yang jelas dan mudah diakses dalam keadaan darurat.
5. Pengelolaan Anggaran dan Budgeting yang Tepat
Deskripsi: Pengelolaan anggaran yang tepat memastikan proyek berjalan sesuai rencana tanpa melebihi budget yang ditetapkan.
- Tahapan
- Estimasi Biaya: Buat estimasi biaya yang rinci untuk setiap tahap pembangunan termasuk bahan bangunan, tenaga kerja, dan biaya operasional.
- Pengawasan Anggaran: Lakukan pengawasan ketat terhadap penggunaan anggaran selama proses pembangunan.
- Evaluasi dan Penyesuaian: Lakukan evaluasi berkala dan sesuaikan rencana jika diperlukan untuk menghindari pembengkakan biaya.
Dengan memperhatikan lima hal utama—tata ruang yang efisien, kenyamanan dan ventilasi, pemilihan material, keamanan dan aksesibilitas, serta pengelolaan anggaran—Anda dapat membangun atau merenovasi kos-kosan 2 lantai yang memenuhi kebutuhan penghuni serta memberikan nilai tambah sebagai investasi. Perencanaan yang detail dan eksekusi yang profesional akan memastikan proyek selesai tepat waktu dengan hasil yang memuaskan. CV Jaya Intero siap membantu Anda mewujudkan kos-kosan impian yang nyaman, aman, dan menarik bagi penyewa
Perbandingan Untuk Desain Kos-Kosan 2 Lantai Dengan Tema Eropa Dibanding Vintage Juga Dengan Industrialis

Sebagai kontraktor berpengalaman dari CV. Jaya Intero, saya akan menjelaskan kelebihan desain kos-kosan 2 lantai dengan perbandingan tiga tema: Eropa, Vintage, dan Industrialis. Berikut ini adalah pengertian dan ciri-ciri masing-masing tema, serta detail ukuran tiap ruang, tata letak, dan kisaran budget untuk membangunnya.
1. Desain Kos-Kosan Bergaya Eropa

Pengertian dan Ciri-ciri
- Pengertian: Desain bergaya Eropa mengusung keanggunan dan keindahan dengan detail arsitektur klasik dan modern.
- Ciri-ciri
- Material: Penggunaan marmer, batu alam, dan kayu.
- Detail Arsitektur: Ornamen klasik seperti kolom, pilaster, dan cornice.
- Warna: Palet warna netral dengan aksen emas atau perak.
- Furnitur: Elegan dengan gaya klasik dan modern.

Detail Ruang dan Tata Letak
- Kamar Tidur: 3×4 meter, 12 kamar per lantai.
- Kamar Mandi: 2×2 meter, 4 kamar mandi per lantai.
- Parkiran: 4×10 meter, bisa menampung 4 mobil.
- Mushola: 3×3 meter.
- Ventilasi: Jendela besar di setiap kamar.
- Tempat Security: 2×2 meter di pintu masuk.
Kisaran Budget: Rp 2 – 2.5 Miliar
2. Desain Kos-Kosan Bergaya Vintage

Pengertian dan Ciri-ciri
- Pengertian: Desain bergaya Vintage mengedepankan nuansa nostalgia dengan furnitur dan dekorasi yang klasik dan unik.
- Ciri-ciri
- Material: Penggunaan kayu tua, bata ekspos, dan bahan daur ulang.
- Detail Arsitektur: Ornamen retro dan furnitur klasik.
- Warna: Warna pastel dengan sentuhan retro.
- Furnitur: Gaya klasik dan unik, sering kali dengan sentuhan antik.

Detail Ruang dan Tata Letak
- Kamar Tidur: 3×4 meter, 12 kamar per lantai.
- Kamar Mandi: 2×2 meter, 4 kamar mandi per lantai.
- Parkiran: 4×10 meter, bisa menampung 4 mobil.
- Mushola: 3×3 meter.
- Ventilasi: Jendela dan ventilasi silang.
- Tempat Security: 2×2 meter di pintu masuk.
Kisaran Budget: Rp 1.8 – 2.3 Miliar
3. Desain Kos-Kosan Bergaya Industrialis

Pengertian dan Ciri-ciri
- Pengertian: Desain bergaya Industrialis mengedepankan estetika pabrik dan utilitarian dengan elemen mentah dan tidak selesai.
- Ciri-ciri:
- Material: Penggunaan beton, baja, dan kayu kasar.
- Detail Arsitektur: Ekspos struktur bangunan, pipa, dan saluran.
- Warna: Palet warna monokrom dengan aksen metalik.
- Furnitur: Sederhana dan fungsional dengan sentuhan industri.
Detail Ruang dan Tata Letak
- Kamar Tidur: 3×4 meter, 12 kamar per lantai.
- Kamar Mandi: 2×2 meter, 4 kamar mandi per lantai.
- Parkiran: 4×10 meter, bisa menampung 4 mobil.
- Mushola: 3×3 meter.
- Ventilasi: Ventilasi silang dengan jendela besar.
- Tempat Security: 2×2 meter di pintu masuk.
Kisaran Budget: Rp 1.5 – 2 Miliar
Ketiga tema desain kos-kosan ini memiliki kelebihan dan karakteristik unik yang dapat memenuhi berbagai selera dan kebutuhan. Desain Eropa menawarkan keanggunan dan kemewahan, Vintage memberikan nuansa nostalgia dan unik, sementara Industrialis menawarkan estetika modern dan utilitarian.
Mengapa Memilih CV. Jaya Intero
Kami memiliki pengalaman luas dalam membangun dan merenovasi berbagai jenis bangunan.Kami hanya menggunakan bahan berkualitas tinggi dan tenaga ahli yang terlatih. Kami berkomitmen untuk memberikan hasil yang memuaskan dengan mempertimbangkan kebutuhan dan anggaran Anda. kami siap membantu Anda mewujudkan kos-kosan impian yang nyaman, aman, dan menarik bagi penyewa. Segera hubungi kami untuk konsultasi lebih lanjut.
