Tentu saja. Penambahan lantai pada bangunan eksisting merupakan hal yang layak secara teknis, dengan catatan bahwa struktur fondasi dan kolom bangunan awal telah dirancang untuk mengakomodasi beban tambahan. Tim ahli kami di CV Jaya Intero Medan akan melakukan evaluasi struktural menyeluruh terhadap bangunan Anda untuk memastikan kelayakan penambahan lantai. Selanjutnya, kami akan menyusun perencanaan detail yang meliputi desain arsitektur, perhitungan struktur, serta pemilihan material yang sesuai dengan kebutuhan dan anggaran Anda.
6 Hal Yang Harus Diperhatikan Saat Akan Merenovasi Rumah 1 Lantai Menjadi 2 Lantai
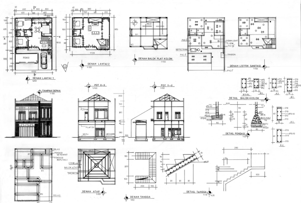
Merenovasi rumah 1 lantai menjadi 2 lantai adalah proyek ambisius yang dapat memberikan nilai tambah signifikan pada properti Anda, baik dari segi fungsionalitas maupun nilai jual. Namun, proyek ini juga memerlukan perencanaan yang cermat dan pertimbangan yang matang untuk memastikan hasil akhir yang memuaskan dan sesuai dengan harapan Anda. Berikut adalah beberapa aspek penting yang perlu diperhatikan dalam merenovasi rumah 1 lantai menjadi 2 lantai:
1. Evaluasi Struktur Bangunan

- Kekuatan Fondasi: Fondasi adalah dasar dari setiap bangunan, dan sangat penting untuk memastikan bahwa fondasi rumah Anda cukup kuat untuk menopang beban tambahan dari lantai kedua. Jika fondasi tidak memadai, penguatan atau bahkan pembangunan ulang fondasi mungkin diperlukan. Proses ini melibatkan penggalian, penambahan material penguat seperti beton bertulang, dan pemadatan tanah.
- Kekuatan Kolom dan Balok: Kolom dan balok adalah tulang punggung struktur bangunan. Evaluasi menyeluruh terhadap kekuatan dan kapasitasnya sangat penting untuk memastikan mereka dapat menahan beban tambahan dari lantai kedua. Jika diperlukan, penambahan kolom atau balok baru, atau penguatan struktur yang ada dengan pelat baja atau serat karbon, dapat dilakukan.
- Material Bangunan: Pemilihan material yang tepat untuk lantai kedua sangat penting untuk menjaga integritas struktur dan meminimalkan beban pada fondasi. Material ringan namun kuat seperti baja ringan, kayu laminasi, atau panel beton ringan dapat menjadi pilihan yang baik. Selain itu, pertimbangkan juga penggunaan material yang tahan api dan tahan terhadap serangan rayap.
2. Desain dan Tata Ruang

- Fungsionalitas: Perencanaan tata ruang lantai kedua harus memperhatikan fungsi setiap ruangan dan kebutuhan penghuni rumah. Misalnya, jika Anda membutuhkan ruang kerja yang tenang, pastikan lokasinya jauh dari area yang berpotensi bising seperti kamar anak-anak atau ruang keluarga. Pertimbangkan juga kebutuhan akan ruang penyimpanan, kamar mandi tambahan, atau balkon.
- Sirkulasi Udara dan Pencahayaan: Lantai kedua harus memiliki sirkulasi udara dan pencahayaan alami yang baik untuk menciptakan lingkungan yang nyaman dan sehat. Pertimbangkan penggunaan jendela besar, ventilasi silang, atau skylight untuk memaksimalkan cahaya alami dan aliran udara.
- Estetika: Desain lantai kedua harus selaras dengan gaya arsitektur rumah secara keseluruhan. Pertimbangkan penggunaan material, warna, dan detail finishing yang sesuai dengan gaya yang Anda inginkan, baik itu modern minimalis, klasik, atau tradisional.
3. Perizinan
- Izin Mendirikan Bangunan (IMB): Sebelum memulai renovasi, pastikan Anda telah memperoleh IMB yang sesuai dari pemerintah daerah setempat. IMB ini akan memastikan bahwa renovasi Anda sesuai dengan peraturan bangunan yang berlaku.
- Peraturan Lingkungan: Selain IMB, perhatikan juga peraturan lingkungan setempat terkait ketinggian bangunan, jarak dengan bangunan tetangga, dan dampak lingkungan lainnya. Konsultasikan dengan ahli atau pihak berwenang untuk memastikan renovasi Anda memenuhi semua persyaratan yang berlaku.
4. Anggaran
- Biaya Konstruksi: Biaya konstruksi untuk renovasi rumah 1 lantai menjadi 2 lantai dapat bervariasi tergantung pada berbagai faktor, seperti luas bangunan, kompleksitas desain, jenis material yang digunakan, dan lokasi geografis. Buatlah anggaran yang realistis dan rinci dengan mempertimbangkan semua biaya yang mungkin timbul, termasuk biaya material, tenaga kerja, perizinan, dan biaya tak terduga.
- Biaya Tak Terduga: Selalu alokasikan dana untuk biaya tak terduga yang mungkin muncul selama proses renovasi, seperti biaya perbaikan kerusakan yang tidak terduga, perubahan desain, atau kenaikan harga material.
5. Pemilihan Kontraktor
- Pengalaman: Pilihlah kontraktor yang memiliki pengalaman dalam renovasi rumah bertingkat, khususnya penambahan lantai pada bangunan eksisting. Pengalaman ini akan memastikan bahwa kontraktor memahami tantangan teknis dan dapat memberikan solusi yang tepat.
- Reputasi: Pastikan kontraktor memiliki reputasi yang baik dan dapat dipercaya. Periksa referensi dari klien sebelumnya, lihat portofolio proyek mereka, dan pastikan mereka memiliki izin usaha yang sah.
- Komunikasi: Pilih kontraktor yang komunikatif dan responsif terhadap pertanyaan dan masukan Anda. Komunikasi yang baik sangat penting untuk memastikan proyek berjalan lancar dan sesuai dengan harapan Anda.
6. Keselamatan Kerja
- Peralatan Keselamatan: Pastikan kontraktor menyediakan dan mewajibkan penggunaan peralatan keselamatan yang lengkap bagi semua pekerja di lokasi proyek, seperti helm, sepatu keselamatan, sarung tangan, dan masker.
- Pengawasan: Lakukan pengawasan secara berkala terhadap proses renovasi untuk memastikan semua pekerjaan dilakukan sesuai dengan standar keselamatan yang berlaku. Jangan ragu untuk bertanya kepada kontraktor tentang langkah-langkah keselamatan yang mereka ambil.
Dengan pengalaman dan keahlian kami dalam desain dan konstruksi, CV Jaya Intero Medan siap membantu Anda mewujudkan impian rumah 2 lantai Anda. Kami akan mendampingi Anda dalam setiap tahap renovasi, mulai dari perencanaan hingga penyelesaian, untuk memastikan hasil yang memuaskan, aman, dan sesuai dengan anggaran Anda.
4 Alasan Memilih CV. Jaya Intero Medan untuk Renovasi Rumah 1 Lantai Menjadi 2 Lantai

1. Pengalaman dan Keahlian Lokal yang Tak Tertandingi
Dengan pengalaman lebih dari 10 tahun di Medan, kami memahami karakteristik unik rumah-rumah di kota ini, termasuk kondisi tanah, iklim, dan preferensi desain masyarakat setempat. Tim ahli kami terdiri dari arsitek, insinyur sipil, dan tenaga ahli konstruksi yang berpengalaman dan terlatih untuk menangani berbagai tantangan dalam renovasi rumah bertingkat. Kami telah berhasil menyelesaikan berbagai proyek renovasi rumah di Medan, mulai dari rumah minimalis modern hingga rumah tradisional dengan sentuhan kontemporer.
2. Solusi Desain yang Inovatif dan Fungsional
Kami tidak hanya membangun, tetapi juga menciptakan ruang hidup yang inspiratif dan fungsional. Tim arsitek kami akan bekerja sama dengan Anda untuk memahami kebutuhan dan gaya hidup keluarga Anda, serta mengoptimalkan setiap jengkal ruang yang tersedia. Kami akan menghadirkan desain yang inovatif, estetis, dan sesuai dengan karakteristik rumah Anda, sehingga Anda dapat menikmati rumah 2 lantai yang nyaman, fungsional, dan bernilai tambah.
3. Komitmen Terhadap Kualitas dan Kepuasan Pelanggan
Kami hanya menggunakan material berkualitas tinggi dan tenaga kerja yang terampil untuk memastikan hasil akhir yang kokoh, tahan lama, dan estetis. Kami juga memberikan garansi untuk setiap proyek yang kami kerjakan, sebagai bentuk komitmen kami terhadap kualitas dan kepuasan pelanggan. Kami percaya bahwa kepuasan pelanggan adalah kunci kesuksesan kami, dan kami selalu berusaha untuk melebihi harapan Anda.
4. Transparansi dan Profesionalisme
Kami menjunjung tinggi prinsip transparansi dan profesionalisme dalam setiap tahap proyek. Mulai dari konsultasi awal, perencanaan desain, hingga pelaksanaan konstruksi, kami akan selalu berkomunikasi secara terbuka dan jujur dengan Anda. Kami akan memberikan laporan berkala mengenai perkembangan proyek, anggaran, dan kendala yang mungkin terjadi. Kami juga akan selalu siap menjawab pertanyaan dan masukan Anda, sehingga Anda dapat merasa tenang dan yakin bahwa proyek renovasi Anda berada di tangan yang tepat.
Kami lebih dari sekadar kontraktor, kami adalah mitra Anda dalam mewujudkan rumah impian. Dengan pengalaman, keahlian, dan komitmen kami terhadap kualitas, kami yakin dapat memberikan solusi renovasi rumah 1 lantai menjadi 2 lantai yang terbaik untuk Anda dan keluarga. Jangan ragu untuk menghubungi kami untuk konsultasi gratis dan penawaran harga. Kami siap membantu Anda mewujudkan rumah 2 lantai impian Anda di Medan.
